mw | 2018
Architecture design Project. Project Management and supervisión. Interior architecture design. Interior design Furniture design. Creative executions. Set up project. 2016-2018
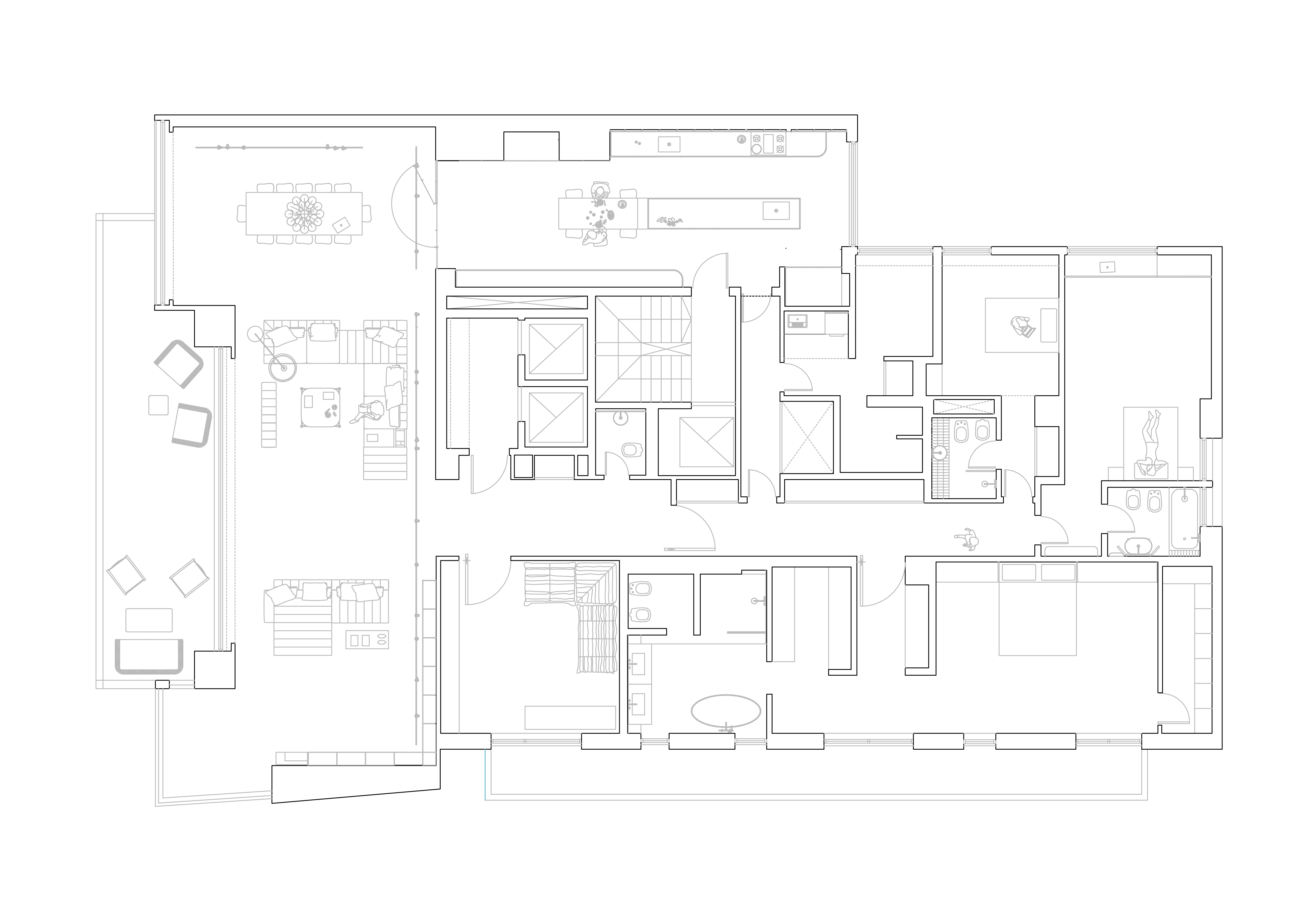
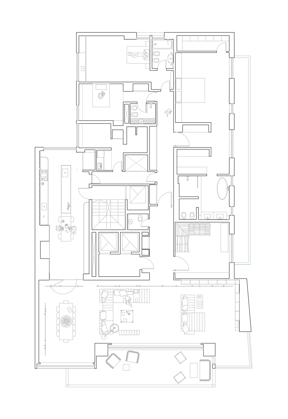
This apartment is located in an iconic 1970’s building in the city of Buenos Aires and boasts one of the city’s best viewpoints. Great efforts were made to maintain key benefits in the original structure such as natural airflow and unfettered views, while stripping the interior of unnecessary excess. The resulting space invites free visual and physical circulation that expands seamlessly into its city views.
Ubicado en una arquitectura de los años 70, el proyecto es uno de los mejores miradores de la ciudad. Convertido en un plano de planta más libre y ligera, el proyecto limpia detalles de acabado adicionales que la arquitectura ya no necesita. El pasado estructural permanece intacto, como el flujo de aire natural y las vistas sin restricciones, mientras elimina el exceso innecesario en el interior, al tiempo que repiensa las nociones convencionales sobre su transformación. El espacio resultante invita a la libre circulación visual y física que se expande sin problemas en las vistas de su ciudad.[finished]

fig 01

fig 02

fig 03

fig 04

fig 05

fig 06

fig 07

fig 09

fig 09

fig 10

fig 11

fig 12

fig 13

fig 14

fig 15

fig 16

fig 17
fig 18
fig 19

fig 20

fig 21

fig 22

fig 23

fig 24

fig 25

fig 26

fig 27

fig 28

fig 29

fig 30
![]()
fig 31
![]()
fig 32

fig 31

fig 32

fig 33

fig 34

fig 35

fig 36

fig 37
fig 38

fig 39

fig 40

fig 41

fig 42

fig 44

fig 43

fig 45

fig 46

fig 47

fig 48

fig 49

fig 50

fig 52

fig 51

fig 54

fig 53

fig 55

fig 56

fig 57

fig 58

fig 59
