gm | 2017
Architecture design Project. Project Management and supervisión. Interior architecture design. 2016-2017
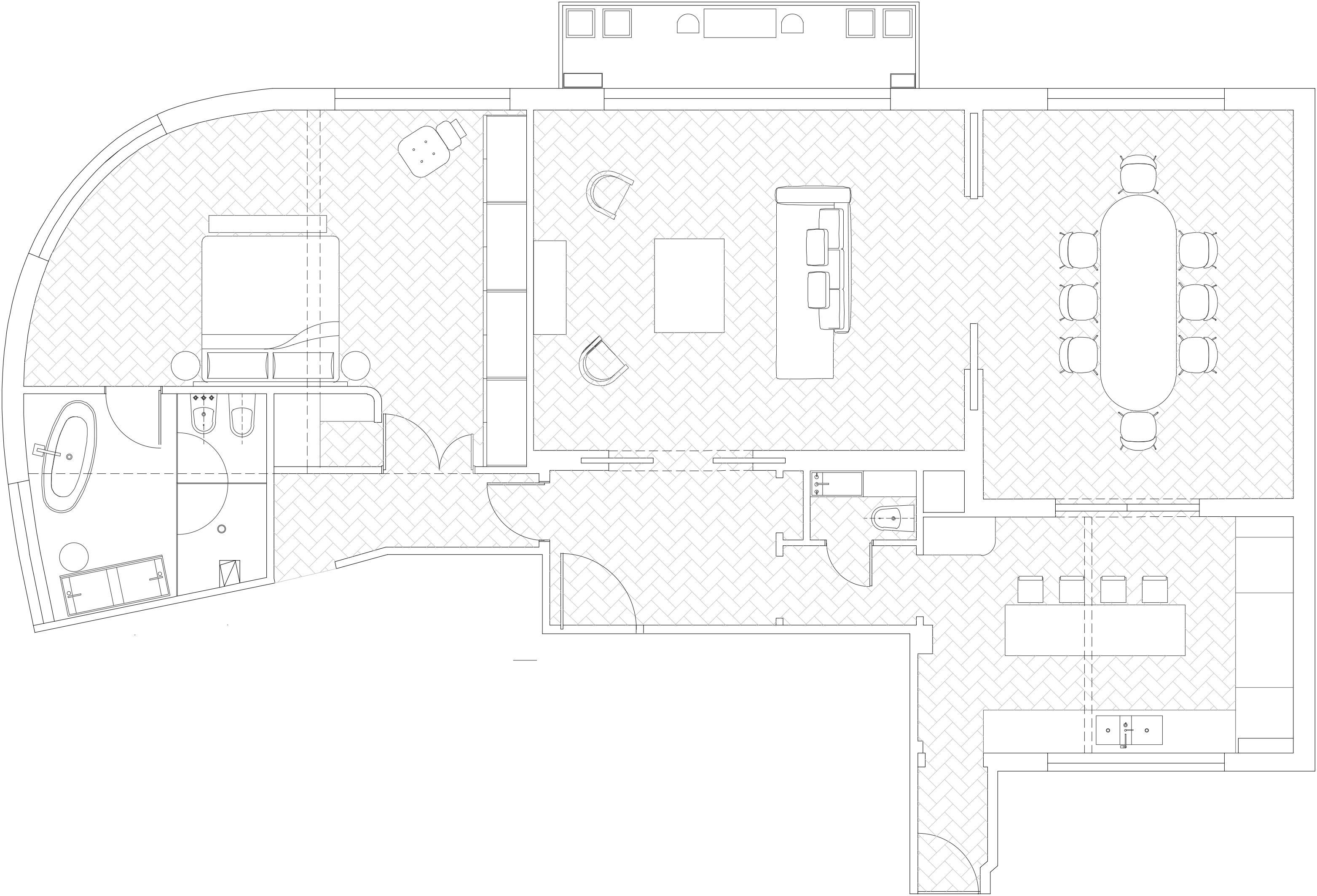
Este departamento ubicado en esquina en un arbolado distrito de la ciudad de Buenos Aires fue re concebido en un nuevo espacio abierto y luminoso. Su transformación se basó en el contraste entre su rica y característica arquitectura y la simplicidad de los colores y materiales utilizados en sus interiores. Una nueva cocina que se extiende hasta el área del comedor fue especialmente diseñada para apoyar el estilo de vida contemporáneo buscado por sus propietarios, en marcado contraste con la dinámica más tradicional con la que se diseñó originalmente este edificio.
Este departamento ubicado en esquina en un arbolado distrito de la ciudad de Buenos Aires fue re concebido en un nuevo espacio abierto y luminoso. Su transformación se basó en el contraste entre su rica y característica arquitectura y la simplicidad de los colores y materiales utilizados en sus interiores. Una nueva cocina que se extiende hasta el área del comedor fue especialmente diseñada para apoyar el estilo de vida contemporáneo buscado por sus propietarios, en marcado contraste con la dinámica más tradicional con la que se diseñó originalmente este edificio.
[finished]

fig 01

fig 02

fig 03

fig 04
fig 05
fig 06

fig 07

fig 08

fig 09

fig 10

fig 11

fig 12

fig 13

fig 14

fig 15

fig 16

fig 17
fig 18
fig 19

fig 20

fig 21

fig 22

fig 23
fig 24

fig 25

fig 26

fig 27

fig 28
fig 29

fig 30

fig 31

fig 32

fig 33

fig 36

fig 34
![]()
fig 35

fig 37

fig 38

fig 39

fig 40

