vt | 2025-2026
Architectural project, interior architecture. Project management and supervision, furniture design, creative execution. Project set-up under construction.
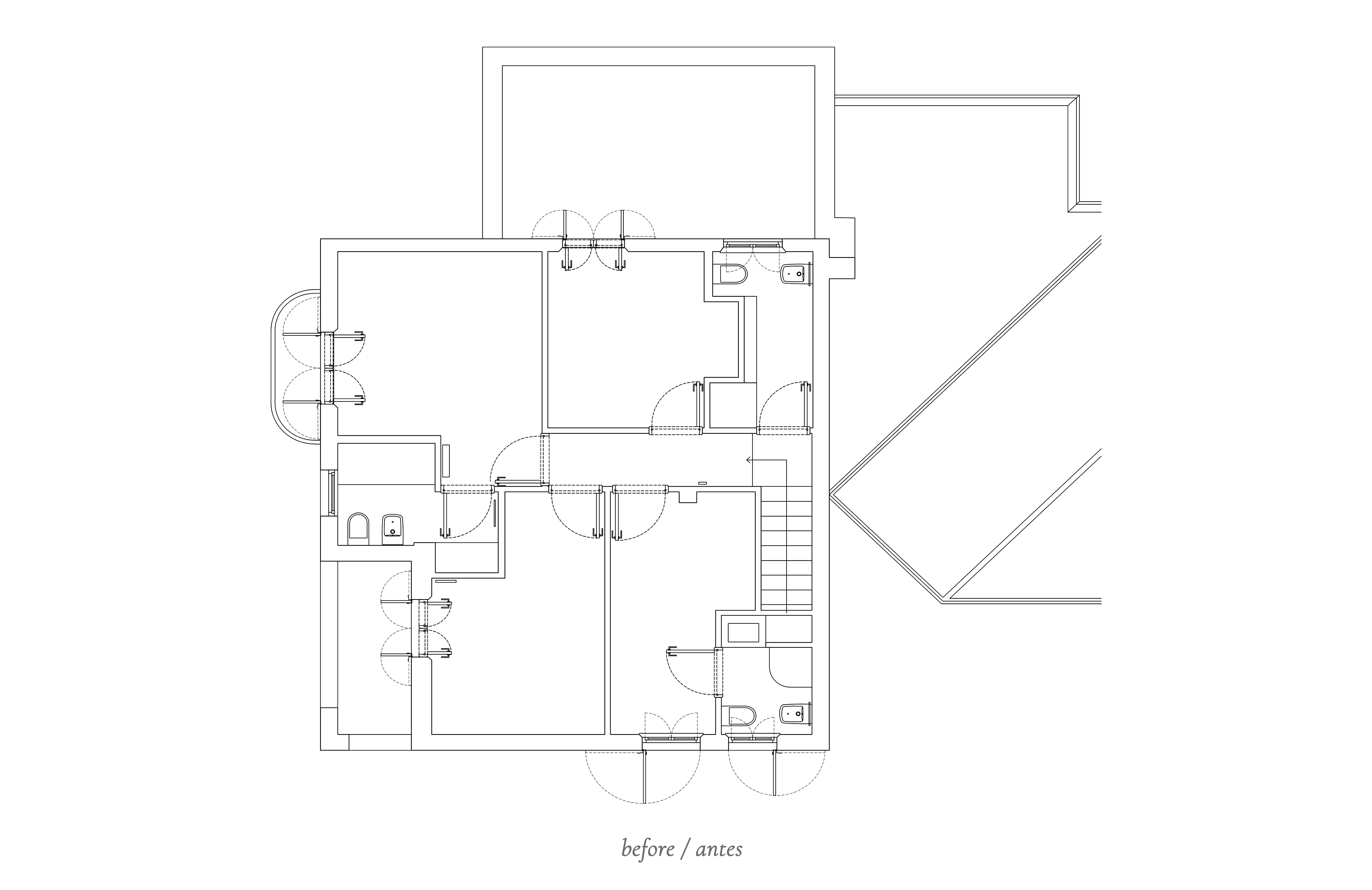
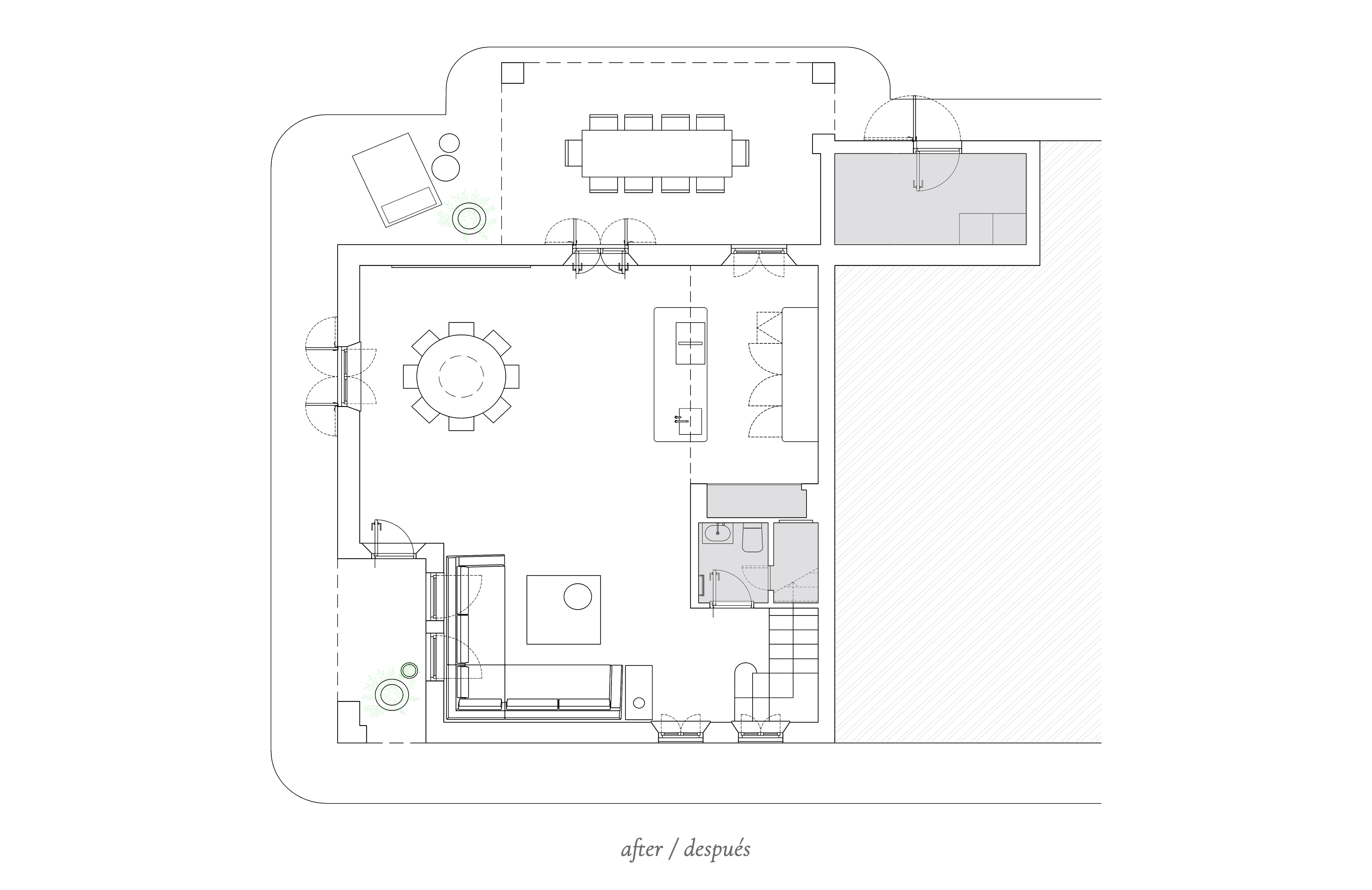
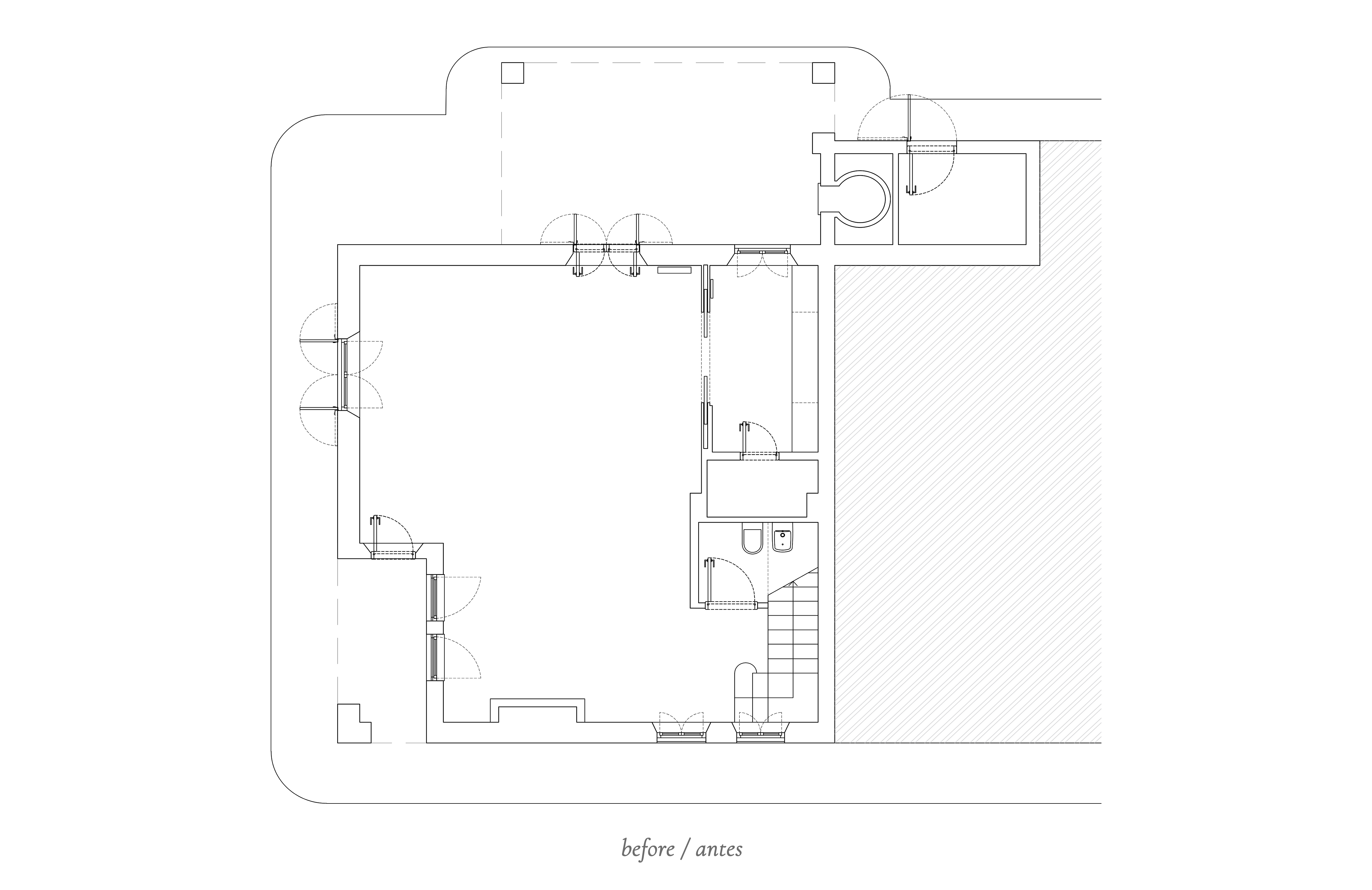
This summer villa is located in Forte dei Marmi, Italy.
Esta villa de verano está ubicada en Forte dei Marmi, Italia.
[under construction]

fig 01.


fig 02.




fig 03.


team: estudio Karina kreth / project managment: Federica Bresin / constrcution: che casa costruzioni / ph: estudio karina kreth /
fig 01_vt_plantas existentes / fig 02_vt_plantas proyecto
